Description de l'offre
3%.COM - à ECKWERSHEIM, corps de ferme composé d'une maison d'habitation de 136m² à rafraîchir en totalité et d’une dépendance (hangar) d’environ 170m², cour, petit jardin, garages, cave et de nombreux espaces de stockage, Le tout sur une parcelle de 7,50ares.
 
!!! IDÉAL INVESTISSEURS OU ARTISANS !!!
 
--- Vous recherchez un bien à rénover, à transformer à vos goûts, la qualité de vie d'un village de l’eurometropole , alors n'hésitez pas et venez visiter ce bien.
 
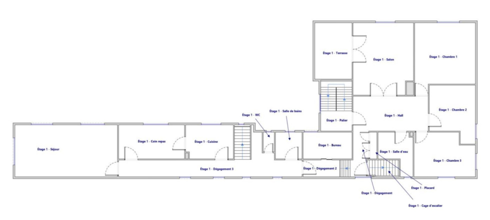
--- BÂTIMENT 1 (maison d’habitation rénovée en 1975 à rafraîchir):
-- Au rez-de-chaussée:
- 1 entrée donnant accès au 1er étage.
- 1 garage triple (sortie côté rue).
 
-- Au premier étage:
- 1 entrée/couloir donnant accès au Bâtiment 2 en demi-niveau haut..
- 1 cuisine indépendante avec salle à manger attenante.
- 1 salon/séjour.
- 1 wc séparé.
- 1 salle de bain.
- 1 pièce/bureau.
 
--- BÂTIMENT 2 (extension des années 80 du Bâtiment 1):
-- Au rez-de-chaussée:
- 1 entrée donnant accès au 1er étage.
- 1 garage double (sortie côté cour).
- 1 grande pièce de stockage + chaufferie.
- 1 wc.
- 1 douche.
 
-- Au premier étage:
- 1 grand dégagement.
- 1 couloir équipé de rangements donnant accès au 1er étage du bâtiment 1 en demi-niveau bas ainsi qu’au 2ème étage (comble aménageable).
- 1 petit salon avec accès à une terrasse couverte.
- 1 pièce d’eau équipée d’un wc et d’un lavabo.
- 3 chambres.
 
-- Au deuxième étage:
- 1 grand comble aménageable.
 
--- BÂTIMENT 3 (hangar):
- 1 grand espace de stockage d’environ 170m² avec accès à un petit jardin.
 
-- À l'extérieur:
- Une grande cour pouvant accueillir plusieurs véhicules.
 
-- Autres informations:
- Bien à rafraîchir et/ou à rénover.
- Possibilité de créer des logements distincts - idéal pour investisseurs ou artisans.
- Fenêtres double vitrage bois
- Chaudière fioul.
- DPE: G.
 
-- Principales distances:
Schilt.Parc Euro Entrep: 15 min, 16 km.
Strasbourg centre: 24 min, 20 km.
Saverne: 30 min, 39 km.
Brumath: 9 min, 7 km.
Centre commerciale Cora Mundo : 10 min, 5 km
 
--Contactez Sébastien au 03 88 69 62 46 ou 06 62 39 00 28.
Du lundi au samedi de 9h00 à 19h00.
Agent Commercial en Immobilier, inscrit au RSAC Strasbourg No 797 569 951.
-- Agence Immobilière ROTH IMMOBILIER Sarl, franchisé 3%.COM, RCS 803 863 638.
-- Agence et vitrines à Hochfelden, siège à Gimbrett-Kochersberg.
-- Réseau national à honoraires réduits: 3% TTC.
Les informations sur les risques auxquels ce bien est exposé sont disponibles sur le site Géorisques

 
         
                     
                     
                     
                     
                     
                     
                     
                     
                     
                     
                     
                     
                     
                     
                     
                     
                     
                     
                     
                    