Description de l'offre
3%.COM IMMOBILIER, Geoffrey Bonvalet vous présente ce magnifique corps de ferme entiérement rénové niché en pleine nature entre fôret et mer.
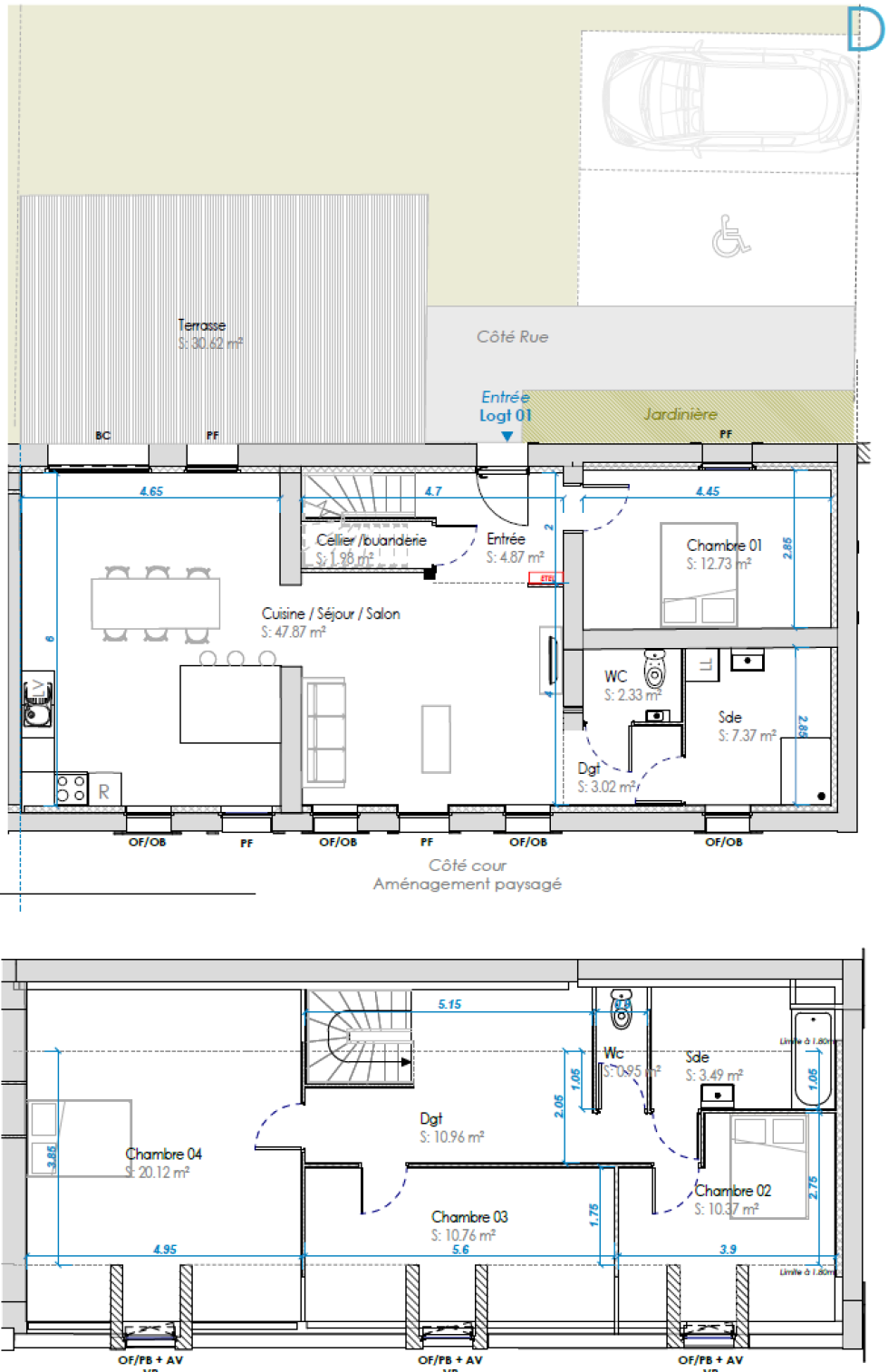
Ce bien de 132m² se compose au RDC d'une entrée, un vaste salon séjour de 47m², un cellier, une chambre ainsi qu'une salle d'eau et un WC aux normes PMR.
À l'étage un grand palier desservant 3 belles chambres dont une de 20m² avec poutre apparente, une salle de bains ainsi qu'un deuxième wc.
Côté extérieur une terrasse de 30m², un jardin ainsi que deux emplacements de parking privatif.
Ce domaine sécurisé composé de 6 logements vous séduira par son ambiance extérieur en pierre, brique et bardage bois. La qualité des matériaux intérieurs est aussi chaleureux en garantissant également les meilleures performances économique et écologique.
Pour tout autre renseignement, contacter Geoffrey au 06 36 12 58 33 RSAC 914 324 413 Boulogne sur mer. Retrouvez nous également sur notre page facebook en tapant Bonvaletimmobilier
Les informations sur les risques auxquels ce bien est exposé sont disponibles sur le site Géorisques
