 
                                                                                                                                                            
                                                          
                        
        
                                        
                    
    
                            MAISON CONTEMPORAINE PLAIN PIED VENANSAULT
Maisons 200 m² - 8 Pièces -
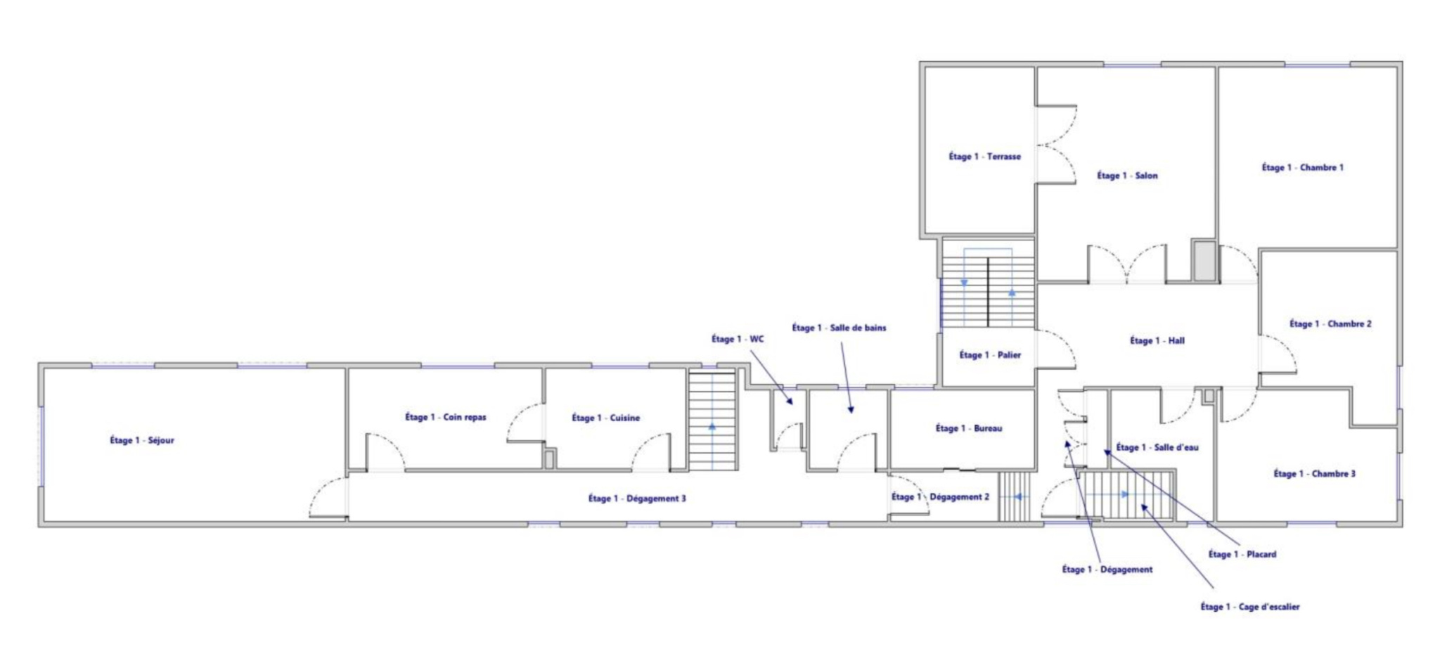
3%.COM Anita Degrolard vous propose une maison contemporaine récente de 2010, située au calme dans un lieu-dit, commune de Venansault. Elle comprend : 200m2 habitable, entrée, wc, placard,...

 
                 
                                     
                                     
                                     
                                     
                                                                                                                     
                                     
                                     
                                     
                                     
                                                                                                                                 
                                     
                                     
                                     
                                     
                                                                                                                                                            
                                                             
                                     
                                     
                                     
                                     
                                                                                             
                                    